Neubau · Linz · 2028

Modernes Wohnen
im Herzen von Linz

11 hochwertige Mietwohnungen und ein Geschäftslokal im Erdgeschoss – zentrumsnah, urban, zeitgemäß.

Ein neues Zuhause entsteht

Anstelle eines Gründerzeithauses aus dem Jahr 1896, das sich bis heute in Familienbesitz befindet, entsteht ein modernes Wohngebäude mit hochwertiger Architektur und zeitgemäßem Wohnkomfort.

Das Gebäude befindet sich in der Wienerstraße in Linz und verbindet städtisches Flair mit einer ausgezeichneten Infrastruktur. Im Erdgeschoss ist ein Geschäftslokal vorgesehen, die Obergeschosse beherbergen 11 Mietwohnungen in verschiedenen Größen.

Balkone, großzügige Verglasung und eine klare Formensprache prägen das Erscheinungsbild des Gebäudes.

11
Wohnungen
5
Obergeschosse
2028
Fertigstellung
Gebäude Ansicht

Architektur im Detail

Die Wohnungen im Überblick

Alle Wohnungen verfügen über hochwertige Ausstattung, großzügige Verglasung und – in den Obergeschossen – eigene Balkone.

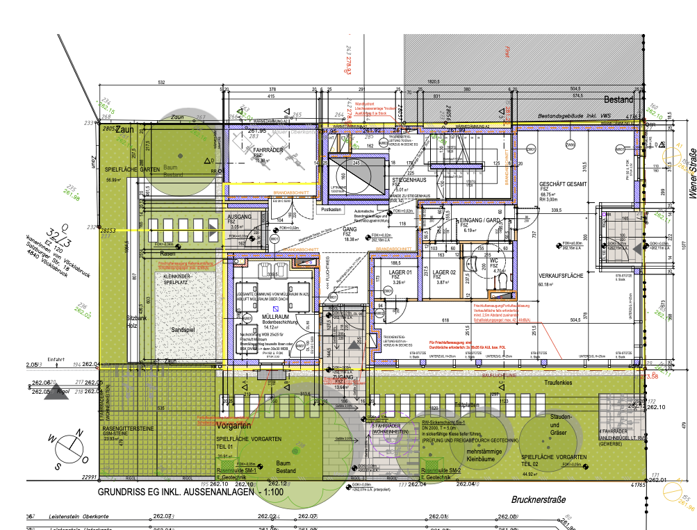
Grundriss Erdgeschoss

Erdgeschoss

Geschäftslokal · Eingang · Allgemeinbereiche

Gewerbe
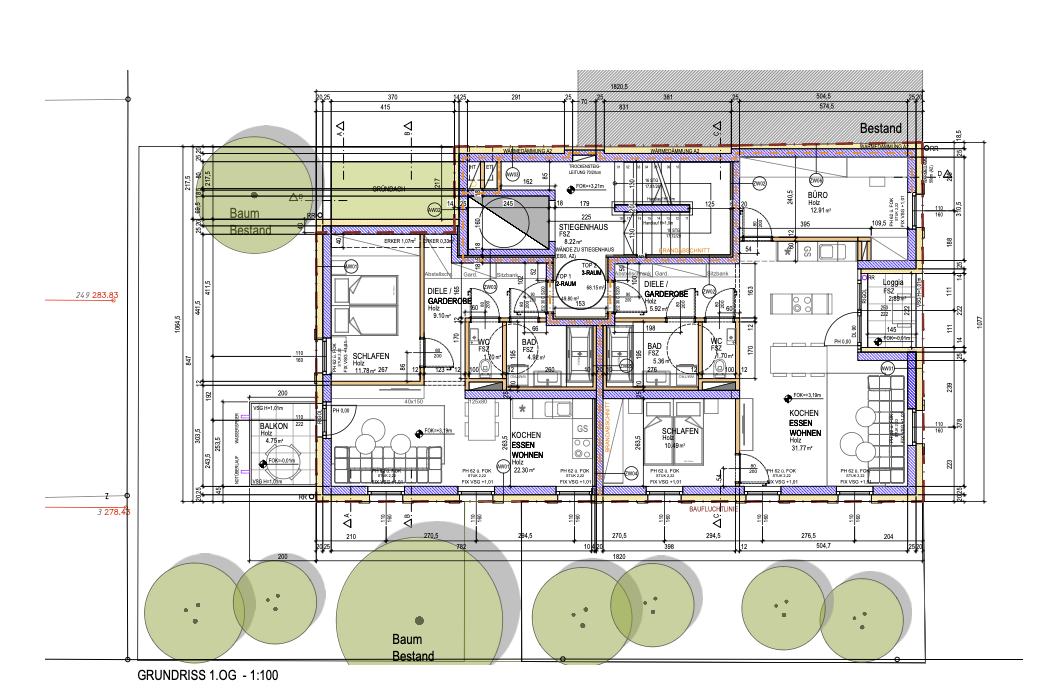
Grundriss 1. Obergeschoss

1. Obergeschoss – Top 1 & Top 2

2 Wohnungen · je mit Balkon · Kochen/Essen/Wohnen · Schlafen · Bad

Mietwohnungen
Grundriss 2. Obergeschoss

2. Obergeschoss – Top 3 & Top 4

2 Wohnungen · je mit Balkon · Kochen/Essen/Wohnen · Schlafen · Bad

Mietwohnungen
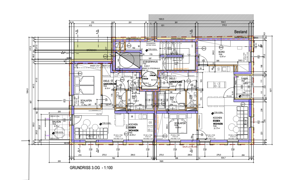
Grundriss 3. Obergeschoss

3. Obergeschoss – Top 5 & Top 6

2 Wohnungen · je mit Balkon · Kochen/Essen/Wohnen · Schlafen · Bad

Mietwohnungen
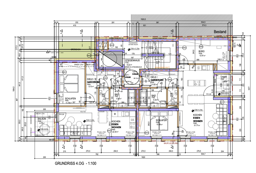
Grundriss 4. Obergeschoss

4. Obergeschoss – Top 7 & Top 8

2 Wohnungen · je mit Balkon · Kochen/Essen/Wohnen · Schlafen · Bad

Mietwohnungen
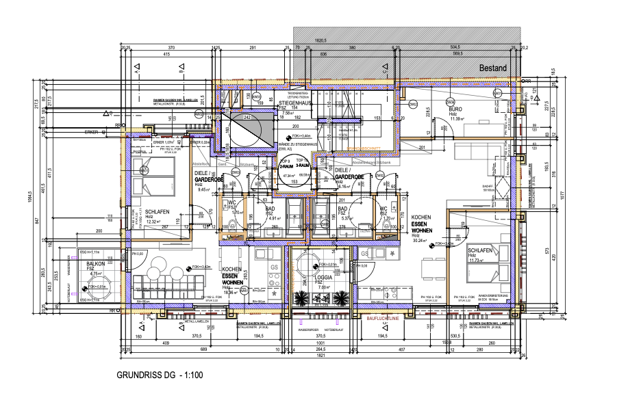
Grundriss Dachgeschoss

Dachgeschoss – Top 9 & Top 10

2 Penthouse-Wohnungen · Loggia · großzügige Verglasung · Top 9: 2-Raum · Top 10: 3-Raum

Penthouse
Grundriss Empore

Empore – Top 11

Exklusives Penthouse · ca. 98 m² · 3-Raum · Loggia · Panoramalage

Penthouse

Mitten im Lebendigen Linz

Das Wohnhaus Wienerstraße liegt in unmittelbarer Nähe zum Stadtzentrum von Linz und bietet eine hervorragende Anbindung an alle wichtigen Einrichtungen der Stadt.

Fußläufige Entfernung zur Linzer Oper, zum Hauptbahnhof und einer Vielzahl an Restaurants, Cafés und Einkaufsmöglichkeiten machen diese Adresse zu einer der attraktivsten in Oberösterreich.

  • Wienerstraße, Linz – nahe Stadtzentrum
  • Fußläufig zur Linzer Oper & Kulturmeile
  • Exzellente Anbindung an öffentliche Verkehrsmittel
  • Familiäres Projekt in Privatbesitz der Laneus GmbH

Zeitplan

2025
Planung & Genehmigung
Architektur, Behördenverfahren
2026
Baubeginn
Abbruch Bestand, Rohbau
2027
Ausbauphase
Haustechnik, Innenausbau
2028
Fertigstellung & Übergabe
Bezugsfertig, Vermietung

Jetzt Interesse bekunden

Sie haben Interesse an einer Wohnung im Laneus Wohnhaus? Wir freuen uns über Ihre Anfrage und melden uns schnellstmöglich bei Ihnen.

Adresse Wienerstraße, Linz, Oberösterreich
E-Mail office@laneus.at
Unternehmen Laneus GmbH

Impressum

Medieninhaber & Herausgeber Laneus GmbH
Nöbauerstraße 63
4040 Gramastetten
Österreich
Unternehmensgegenstand Projektentwicklung
Geschäftsführung DI Reinhard Weber
DI Florian Ortner
Firmenbuch FN 537031 b
Landesgericht Linz
UID-Nummer ATU75701402
Kontakt E-Mail: office@laneus.at
Alle Inhalte dieser Website wurden mit größtmöglicher Sorgfalt erstellt. Für die Richtigkeit, Vollständigkeit und Aktualität der Inhalte übernehmen wir keine Gewähr. Visualisierungen sind nicht rechtsverbindlich und dienen ausschließlich zur Veranschaulichung des geplanten Projekts.